
Buildings at TriQuest Business Center feature advanced architectural design that complement the image of established and growing companies. The TriQuest Business Center is centrally located in the heart of Orange County at the intersection of three major freeways.
- On-site leasing and management.
- Suites from approximately 450 - 10,000 square feet.
- Office, R&D, and Industrial suites available.
- Industrial suites have ground level roll-up doors.
- Ample parking available. Parking ratio is 3.75/1000.
- Pre-improved units available for immediate occupancy.
- Park-like settings.
- Master planned 13.7 acre business park.

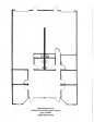
Office w/ Warehouse
G106/107Size: 3,360 Sqft
Price: Call for rates
- LARGE RECEPTION/OFFICE AREA
- 2 OFFICE/CONFERENCE ROOMS
- 3 OFFICES
- 2 RESTROOMS
- LARGE OPEN OFFICE AREA
- 2 KITCHENETTES
- LARGE AIR-CONDITIONED WAREHOUSE
*AVAILABLE MAY 1st, 2026

- Located in the heart of Orange County's high tech research and development center.
- Located at the intersection of 3 major freeways (5, 405, & 133).
- 1 mile from the Irvine Transportation Center and Rail Station.
- 1 mile from the Irvine Spectrum.
- 3 miles from the Irvine Medical Center.
- 10 minutes from John Wayne Airport.









